كثرت عمليات السيرش عن الأفضل مؤخرًا صمم استراحة خاصة حديث هناك الكثير من مواقع السيرش على الويب بشكل عام وهذا بسبب الرغبة في العثور على احدث وأروع التصميمات والخطط التي تم التوصل إليها في تصميم الاستراحات الخاصة التي غالبًا ما تكون متصلة بالمنازل المستعملة. واسعة ومتكررة من قبل أفراد الأسرة ، سواء للاجتماع لقضاء توقيت سعيدة وممتعة ، أو التجمع لاستضافة بعض الضيوف لفترات مؤقتة بسرعة وكفاءة.
ما هو الاستراحة الخاصة
عادة ما يشير مفهوم الصالة الخاصة لـ المساحات الكبيرة أو الزائدة الموجودة في المنازل والتي يتم استغلالها عبر وضع بعض المعدات أو الأدوات المتنوعة ، مثل بعض قطع الأثاث البسيطة مثل الأرائك المريحة والطاولات الصغيرة ، وهذا يأتي أيضًا بالإضافة لـ ذلك. توافر بعض وسائل الترفيه والتسلية مثل شاشات التليفزيون أو حمامات السباحة المتصلة بدورة المياه.
ولعل من أهم الأمور الجديرة بالذكر هنا هو رؤية الصالات على أنها من الحلول المثالية والمناسبة لاستيعاب النزلاء المقيمين لبعض الفترات الجزئية ، وهذا يأتي دون ارتباك أو الاضطرار لـ تعطيل النظام الأساسي والرئيسي. المنزل بشكل عام.
تصميم غرفة جلوس عصرية خاصة 2021
غالبًا ما يبحث الأفراد عن عدد ضخم ومتنوع من النماذج أو الخطط لتصميمات المراحيض المعدة ، وهذا يأتي بهدف إيجاد التصميم الأنسب بناءً على مساحة المنزل وعدده. سيتمكن أفراد العائلة وما يلي من استعراض أفخم وأروع التصاميم الجاهزة المصممة لتناسب توقيت الراحة الخاصة المتصلة بالمنازل:



تابع أيضًا:
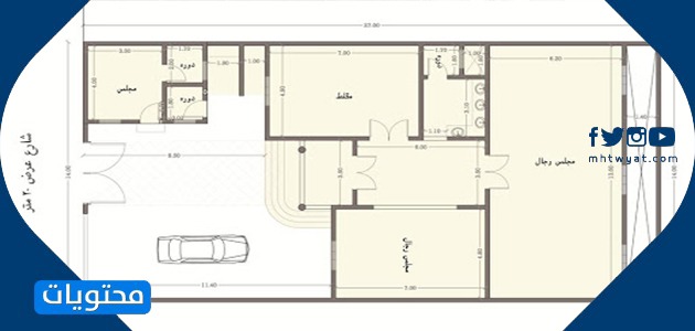
فكرة استراحة حديثة جاهزة
بالنسبة للمراحيض ، يوجد بالفعل الكثير من المخططات الجاهزة التي يمكن استخدامها لتوفير المزيد وتوفير الجهد المطلوب للتفكير والعثور على التصميم المناسب ، وفيما يلي مجموعة واسعة وواسعة من افضل خطط المراحيض الجاهزة. مصمم خصيصًا لعام 2021:



تصميم إجازة عائلية خاصة
تعتبر الاستراحات العائلية من الحلول المثالية والرائعة لأفراد الأسرة الذين يرغبون في الشعور بالدفء والجو العائلي اللطيف ، وتوفير مساحة مناسبة للدردشة والاستحمام الشمسي ، وعادة ما تكون معظم توقيت الراحة العائلية مجموعة محددة من العناصر الأساسية مثل بعضها صغير ومريح قطع أثاث وبعض الألعاب مثل Demino وبعضها بالإضافة لـ توفر بعض الكماليات الترفيهية المختلفة مثل الكتب.
يأتي هذا أيضًا بالإضافة لـ توافر أهم معدات وأدوات الطهي البسيطة مثل معدات الشواء للاستمتاع والاستمتاع بحفلات الشواء الجماعية الرائعة ، وفيما يلي سيتم استعراض الكثير من افضل وأجودها. النماذج المصممة خصيصًا للعطلات العائلية بشكل عام:



صمم استراحة صغيرة جدًا
في الآونة الأخيرة ، كانت هناك زيادة في عمليات السيرش عن عدد ضخم من افضل وأكبر التصميمات المناسبة للمراحيض الصغيرة الحجم التي لا تحتوي على الكثير من الكماليات أو الكماليات المختلفة ، مثل هذه الصالات الفخمة والفاخرة. يقتصر على عدد قليل من الأدوات والمعدات وبعض أثاث الشرفة وحفلات الشواء في المناسبات.
ولكن الآن ، مع مثل هذا التقدم التكنولوجي الكبير ، بدأت تظهر بعض الكماليات المختلفة مثل بناء حمامات السباحة أو الحدائق الصغيرة ، لذلك دعونا الآن نراجع احدث التصاميم للأطفال. توقيت راحة تعطي انطباعًا بالبساطة المريحة والرقي:



تابع أيضًا:
تصميم استراحة فاخر جدا
كما رأينا في بعض الموديلات المعدة سابقًا لفترات الراحة البسيطة والصغيرة ، حان الوقت الآن لاستعراض احدث وأفخم الصالات الكبيرة والواسعة التي تضم الكثير من الكماليات المتعددة مثل وجود البعض. المطابخ الصغيرة والتلفزيونات وبعض المساحات المعدة لإعداد ألذ وألذ المهام السريعة مخصصة للأكل وهذا يأتي أيضًا بالإضافة لـ وجود بعض معدات التدفئة الكاملة وفيما يلي استعراض لبعض من أحلى وألذ . افضل صالونات التجميل الفاخرة والفاخرة المصممة لعام 2021:



ومن ثم ، في الختام ، فقد وضعت هذه المقالة بالفعل مناقشات لعدد من المحاور المهمة والرئيسية ، مثل مراجعة ماهية الفواصل الخاصة أولاً ثم مراجعة افضل القليل منها. صمم استراحة خاصة كما تم عرض نماذج وخطط أخرى للعديد من توقيت الراحة ، سواء كانت فكرة استراحة جاهزة ، أو تصميم استراحة عائلية ، أو حتى تصميم استراحة صغيرة جدًا.
مراجع
ماي موف ، 16/2/2021

